SCIA ENGINEER
Navigation überspringen
Projekte
Referenzen
Über Uns
Kontakt
Navigation überspringen
Impressum
| English
Beratung
Entwurf
Optimierung
Baueingabe
Bauphysik
Statik/Dynamik
Ausführungsplanung
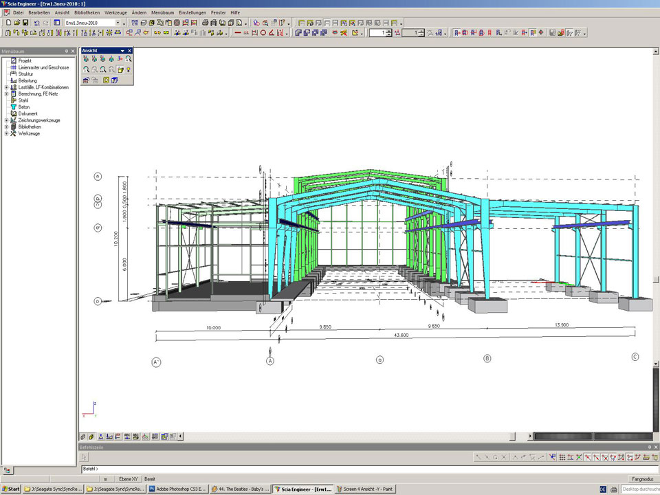
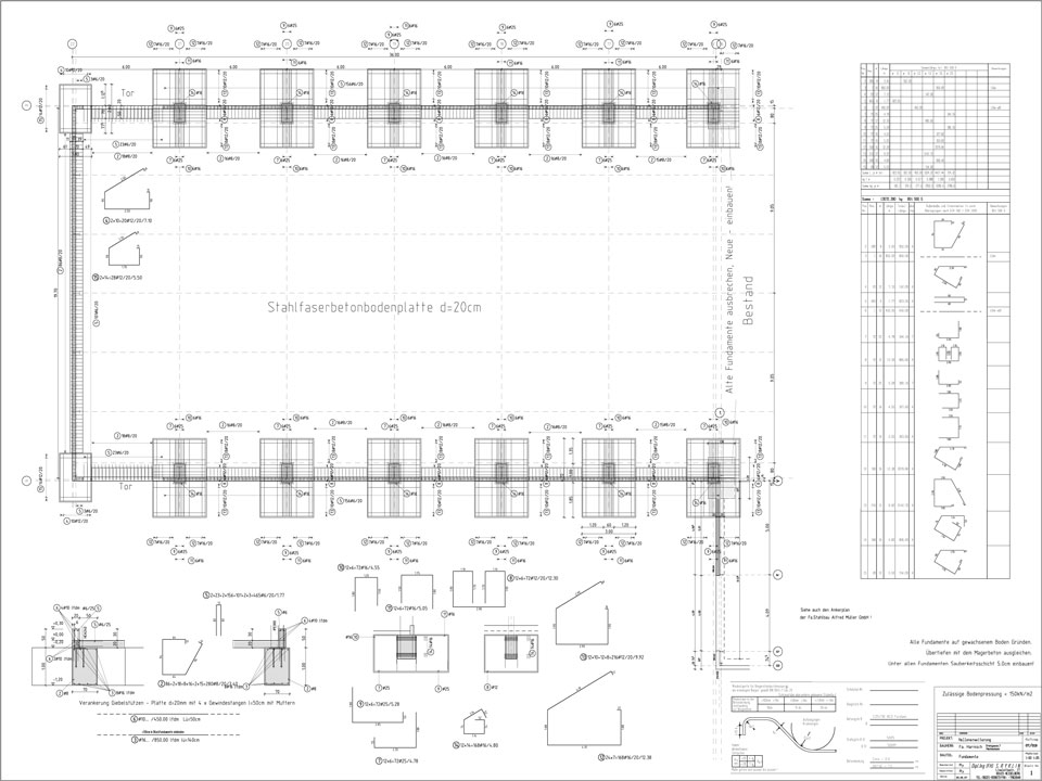
Industrie + Gewerbe
Projekte
>
Metallbauten
>
Industrie- und Lagerhallen
>
Fa. Harnisch Mauer 2005-09
>
Details: Fa. Harnisch Mauer/HD 2005-09
Bitte klicken Sie auf eines der Bilder, um die Galerie zu öffnen.
<<
Zurück