SCIA ENGINEER
Navigation überspringen
Projekte
Referenzen
Über Uns
Kontakt
Navigation überspringen
Impressum
| English
Beratung
Entwurf
Optimierung
Baueingabe
Bauphysik
Statik/Dynamik
Ausführungsplanung
Wohnen + Leben
Projekte
>
Metallbauten
>
Dächer, Terrassen und Podeste
>
Essenpreis MA neue Balkone 2019
>
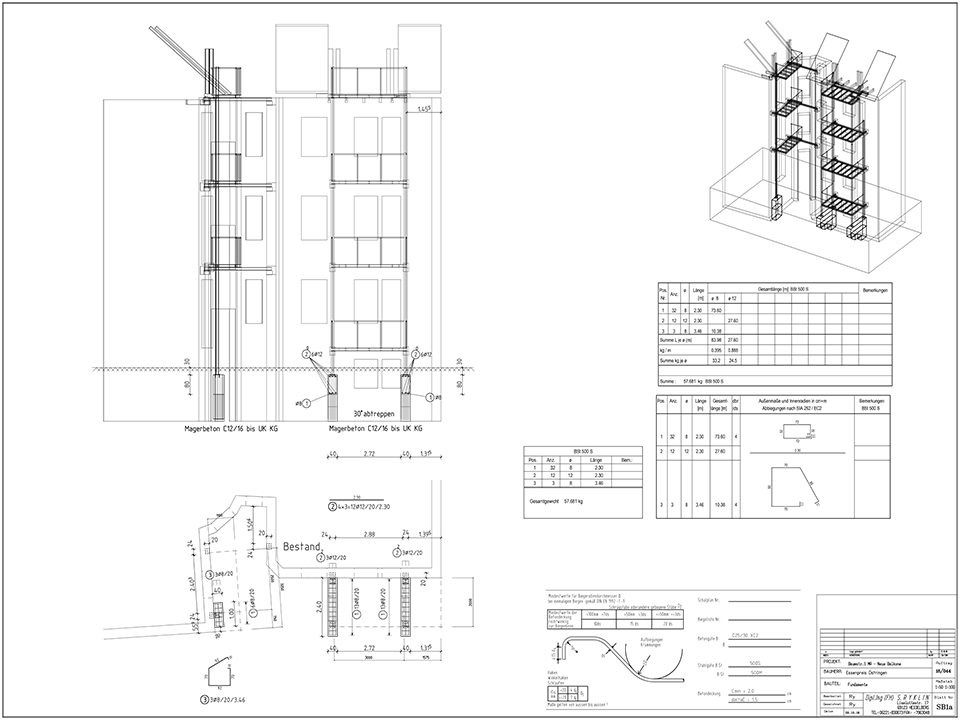
Details: Essenpreis MA neue Balkone 2019
Bitte klicken Sie auf eines der Bilder, um die Galerie zu öffnen.
<<
Zurück